63 Panorama Drive Roadvale QLD
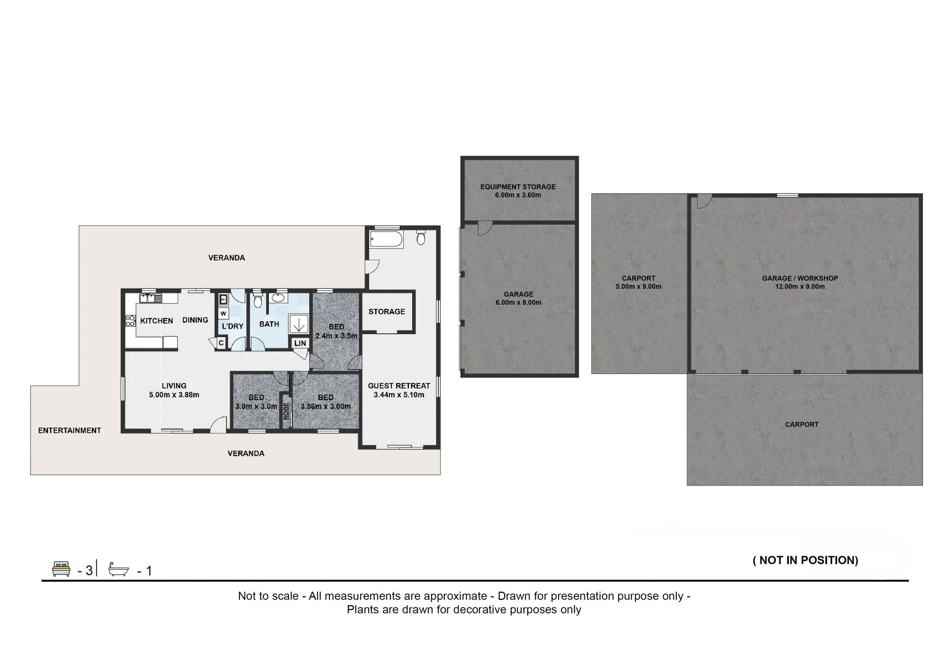
- 3
- 1
- 10
Almost 20,000m2 of Peaceful Acreage
Discover the perfect blend of space and convenience with this nearly 5 acre property in the highly sought-after Roadvale region. Positioned to offer spectacular views of our stunning mountain backdrops, this peaceful location provides an idyllic rural escape while remaining conveniently close to major hubs.
Near the charming towns of Kalbar and Boonah, this north-side position also provides quicker access to Ipswich and Brisbane, offering the best of both worlds. Ideal for those looking to enter the acreage market this property is perfect for small families, retirees seeking space, anyone needing extensive shed storage or even room for animals with a bit of additional fencing. The possibilities are endless in this quiet location!
The residence is designed for comfortable cozy living including entertainment spaces that capture beautiful breezes both inside and out. The home features:
• Three original bedrooms and one bathroom
• Additional ensuite or second bathroom options (as shown in the floor plan)
• A guest wing with air-conditioning
• An air-conditioned combined living/lounge
• Functional & solid Laminex kitchen positioned next to the dining area
Property Features:
• Connected to rural water
• 2 x 5,000-gallon poly rainwater tanks
• 1 x 8,000-gallon concrete rainwater tank
• 6m x 8m shed w concrete floor & 3m x 6m awning
• 9m x 12m shed w concrete floor, power & electric roller doors
• 9m x 5m drive-through carport attached to the main shed
• 6m x 12m carport at the front of the main shed
• Bitumen driveway for easy access
With scenic surroundings, extensive infrastructure and a versatile layout, this property is a fantastic opportunity for those looking to embrace acreage living. Whether you're after space for hobbies, work or relaxation, this package has potential to provide it all. Listings on Panorama Drive don't hang around for long, make sure you schedule your inspection today!
DISCLAIMER: Bartholomew and Co Real Estate has taken all reasonable steps to ensure that the information contained in this advertisement is true and correct but accept no responsibility and disclaim all liability in respect to any errors, omissions, inaccuracies or misstatements contained. Prospective purchasers should make their own enquiries to verify the information contained in this advertisement
Near the charming towns of Kalbar and Boonah, this north-side position also provides quicker access to Ipswich and Brisbane, offering the best of both worlds. Ideal for those looking to enter the acreage market this property is perfect for small families, retirees seeking space, anyone needing extensive shed storage or even room for animals with a bit of additional fencing. The possibilities are endless in this quiet location!
The residence is designed for comfortable cozy living including entertainment spaces that capture beautiful breezes both inside and out. The home features:
• Three original bedrooms and one bathroom
• Additional ensuite or second bathroom options (as shown in the floor plan)
• A guest wing with air-conditioning
• An air-conditioned combined living/lounge
• Functional & solid Laminex kitchen positioned next to the dining area
Property Features:
• Connected to rural water
• 2 x 5,000-gallon poly rainwater tanks
• 1 x 8,000-gallon concrete rainwater tank
• 6m x 8m shed w concrete floor & 3m x 6m awning
• 9m x 12m shed w concrete floor, power & electric roller doors
• 9m x 5m drive-through carport attached to the main shed
• 6m x 12m carport at the front of the main shed
• Bitumen driveway for easy access
With scenic surroundings, extensive infrastructure and a versatile layout, this property is a fantastic opportunity for those looking to embrace acreage living. Whether you're after space for hobbies, work or relaxation, this package has potential to provide it all. Listings on Panorama Drive don't hang around for long, make sure you schedule your inspection today!
DISCLAIMER: Bartholomew and Co Real Estate has taken all reasonable steps to ensure that the information contained in this advertisement is true and correct but accept no responsibility and disclaim all liability in respect to any errors, omissions, inaccuracies or misstatements contained. Prospective purchasers should make their own enquiries to verify the information contained in this advertisement
Features
- Living Area
- Air Conditioning
- Garden Shed
- Workshop
- Rainwater Tank
- Bath
- Close to Schools
- Quiet Location
- Roller Door Access
- Storage
- Storage Area
- Views